Resumen

ID: 53439
  • 2027-11-01
  • Año de construcción

Descripción

EVA PERON 8682 – VISO – FISHERTON FUTURO

Condominio de uso mixto, con oficinas, locales comerciales y unidades de 1, 2 y 3 dormitorios.

Sobre Eva Perón, arteria principal del pintoresco e histórico barrio Fisherton, que busca renovarse sin perder la tranquilidad y el verde entorno que lo caracteriza desde antaño, se alzara VISO, una combinación de oficinas, locales comerciales, y unidades de vivienda. Esta propuesta de usos mixtos, permitirá disfrutar de la fusión de amplios espacios verdes, con el dinamismo que le otorga las diferentes propuestas del polo gastronómico.

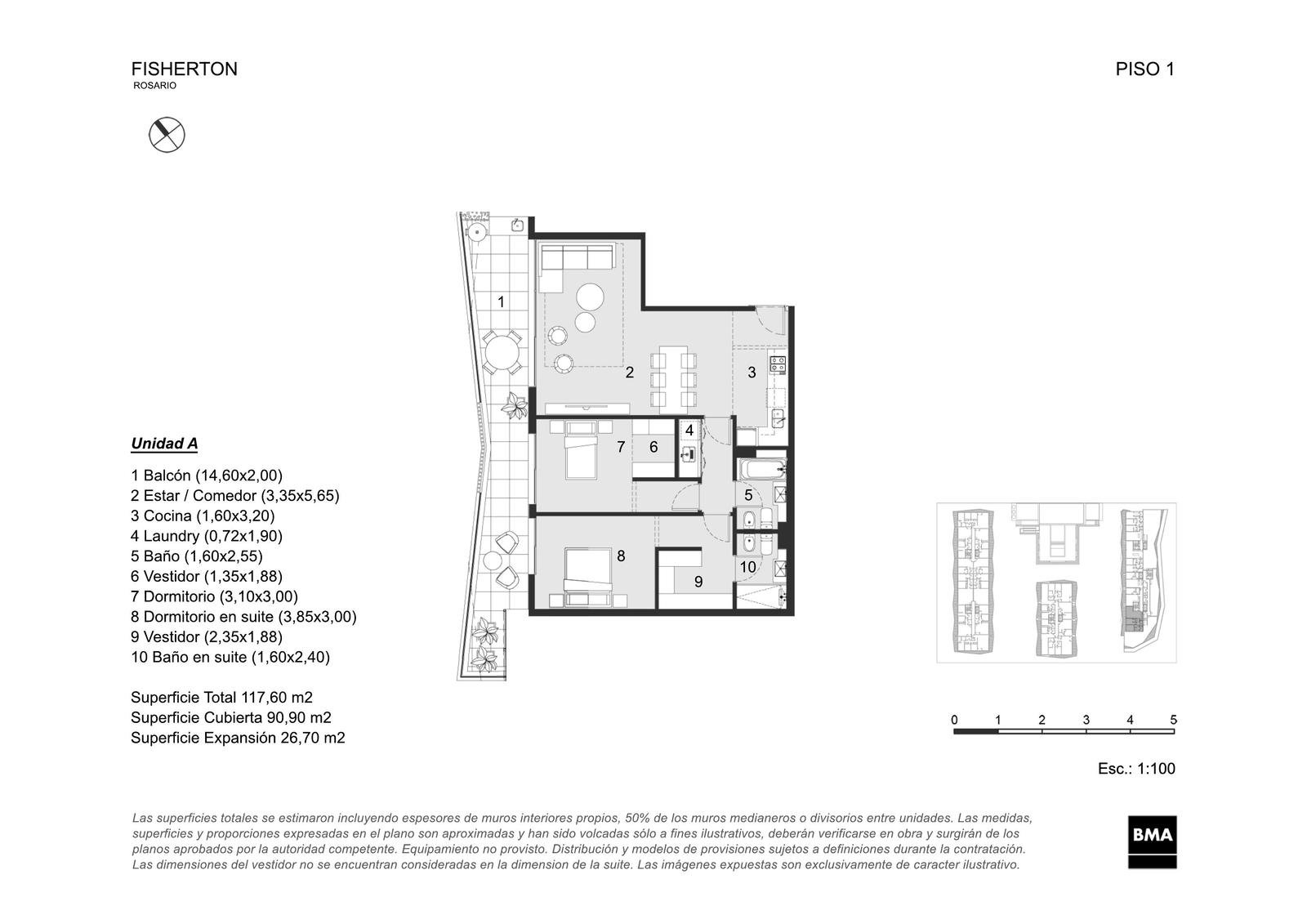
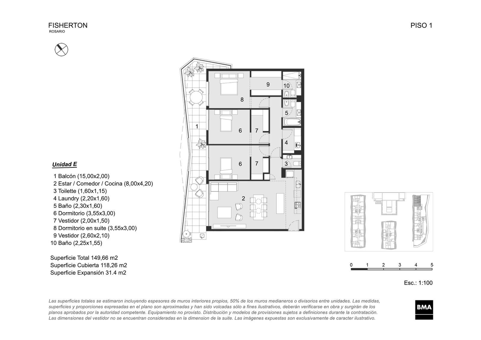
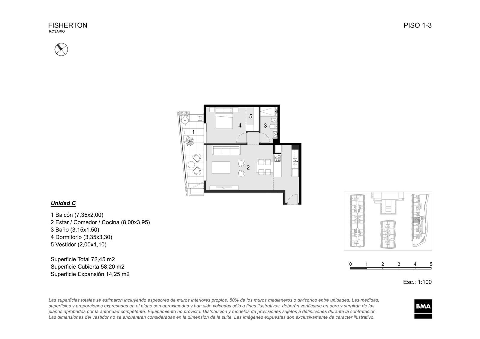
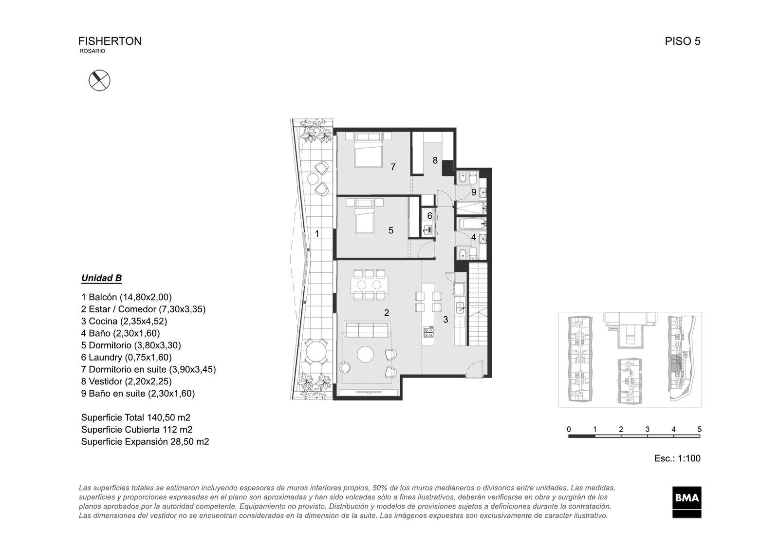
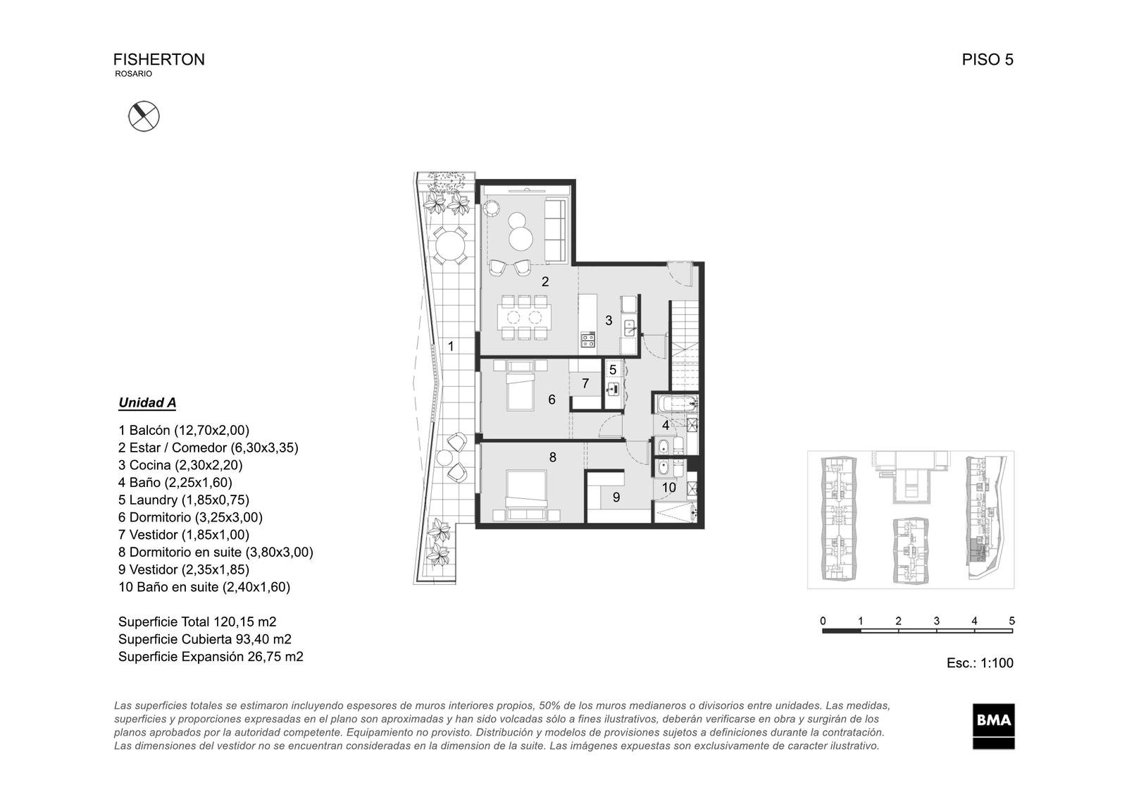
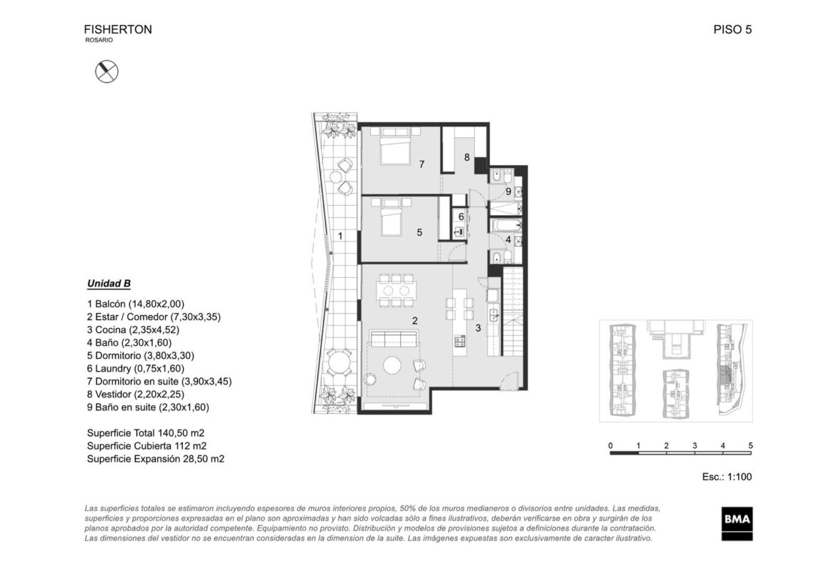
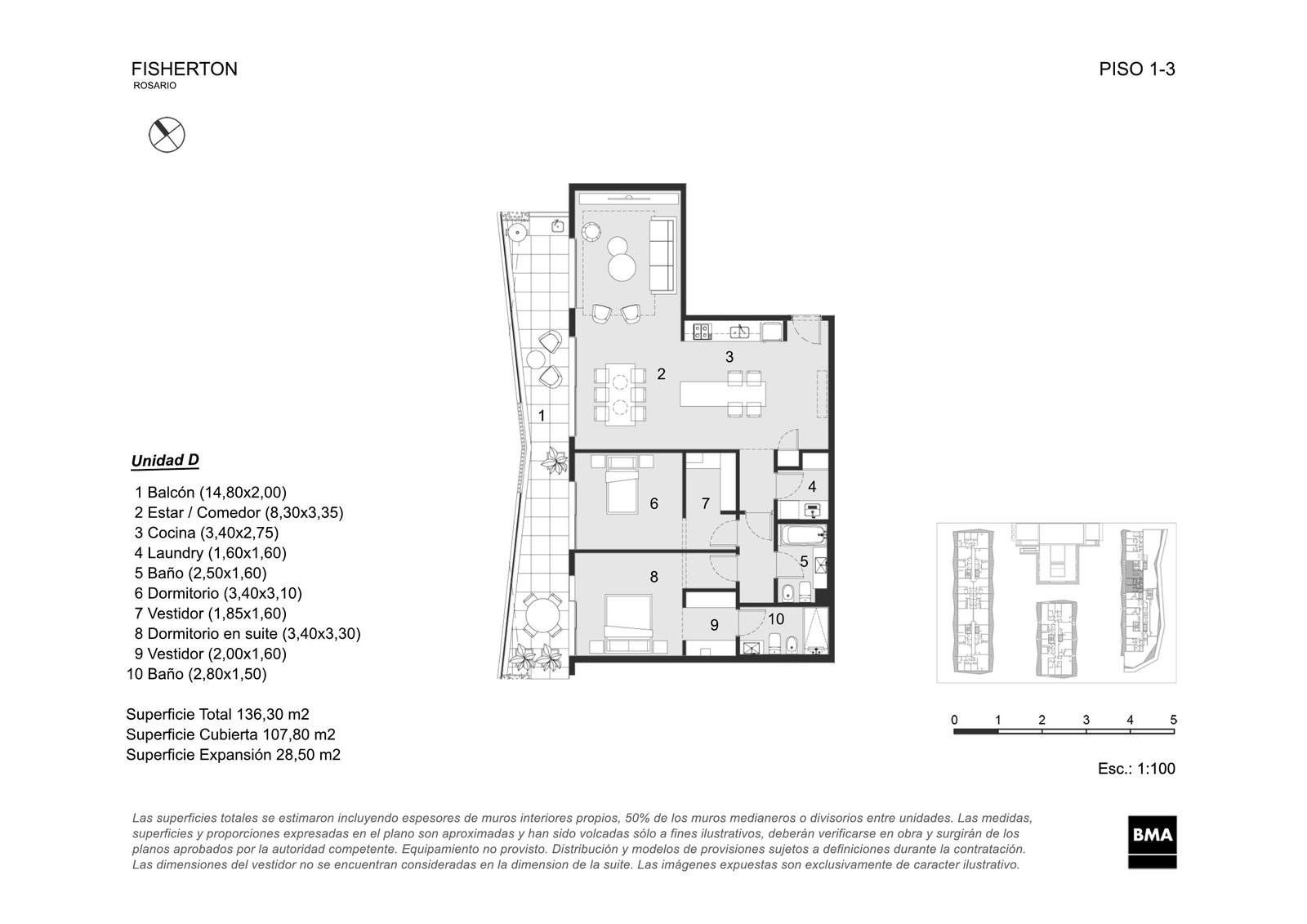
Departamentos: se prioriza la amplitud de la superficie de uso cubierta, añadiéndose terrazas de uso exclusiva para algunas unidades, y otras con amplios balcones con vistas a los espacios comunes verdes del desarrollo.

Amenities: centro fitness, con un generoso espacio para desarrollar la actividad física, SUM con summer grills, idóneo para cocina gourmet, espacio de coworking, zona de juego para niños, áreas verdes y espacio de ocio con fogoneros. Piscina indoor y outdoor.

Terminaciones: mobiliario completo de bajo mesadas y alacenas, pileta de acero inoxidable con grifería de primera marca, mesada de silestone o similar, horno y anafe a gas, pisos en porcelanato, baños con loza sanitaria de primeras marcas, griferías, accesorios, espejos colocados y mesada de silestone o similar según unidad y pisos en porcelanatos. Dormitorios con pisos símil madera, placares de piso a techo empotrados con frente e interiores completos en melamina con sistema corredizo. Las unidades contaran con aberturas de aluminio línea A40 o similar con vidrios DVH. Agua caliente mediante caldera dual (incluida) y calefacción por radiadores (no incluye). En departamentos 1 dormitorio, preinstalación de A/A en cada ambiente y en departamentos 2 y 3 dormitorios sistema multisplit.

Ubicación: A 5 minutos de Funes y 15 minutos del centro de la ciudad. Cercano al aeropuerto y shoppings, así como a los colegios y clubes más prestigiosos de Rosario.

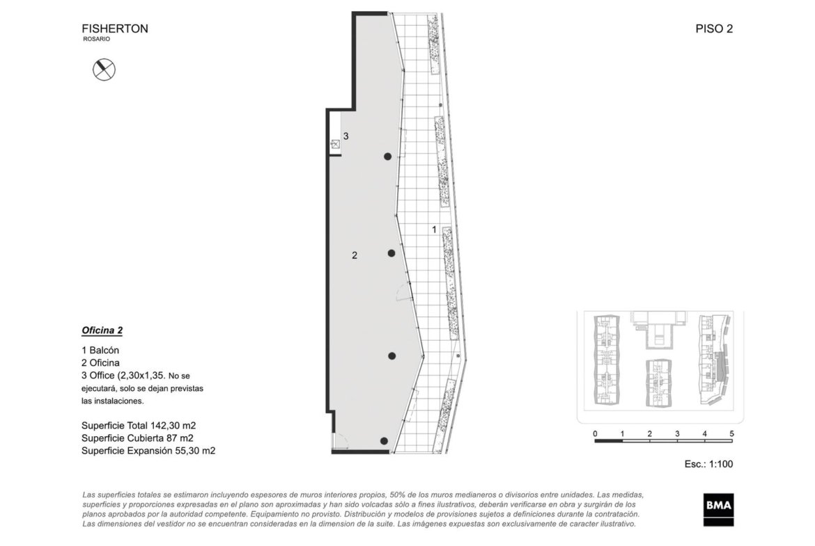
Proyecto: 9.000m² de terreno, 20.000m² de construcción, 3.000m² de verde. Serán 3 etapas. La primera, compuesta por planta baja y cinco pisos destinados a diferentes usos. Sobre Av. Eva Perón, se encuentran las oficinas y, en planta baja los locales comerciales. Hacia el interior de la manzana se encuentran las unidades residenciales. La segunda etapa esta compuesto por un local comercial de gran dimensión en planta baja y cuatro pisos. Y la tercera, también contara con un local comercial en planta baja de similares dimensiones y tres pisos. Las unidades residenciales, con vista a los espacios comunes, se distribuyen en tipologías de 1, 2 y 3 dormitorios. El paseo de locales comerciales creara un gran polo gastronómico. El proyecto integra la esencia del barrio residencial, los usos mixtos y la reapropiación de los espacios públicos vinculados con el entorno natural que caracteriza a la zona.

Forma de pago: entrega del 40 % y el saldo en hasta 36 cuotas en pesos ajustables al c.a.c.

Fecha de entrega: la primer etapa en Noviembre 2026.

Cocheras: Si, opcional

Estado de la construcción: En obra

Dirección

  • Address EVA PERON 8682
  • Zip/Postal Code
  • Country Argentina
  • State Santa Fe
  • City Rosario
  • Area Fisherton

Detalles

  • Property ID 53439
  • Year Built 2027-11-01
  • Property Status Emprendimiento

Unidades disponibles

Comercial
  • Comercial

Consultá por esta propiedad

Compare listings

Compare
Comercial
  • Comercial
Aguardamos tu consulta