Venta condominio fisherton – amenities – financiacion

  • USD407,000
EVA PERON 8682 - 05-01 - 2 Dorm
Venta
Venta condominio fisherton – amenities – financiacion
EVA PERON 8682 - 05-01 - 2 Dorm
  • USD407,000

Resumen

ID: 5660798
  • Departamento
  • Tipo
  • 4
  • Ambientes
  • 2
  • Dormitorios
  • 2
  • Baños
  • 241.25
  • M2
  • En construcción
  • Año de construcción

Descripción

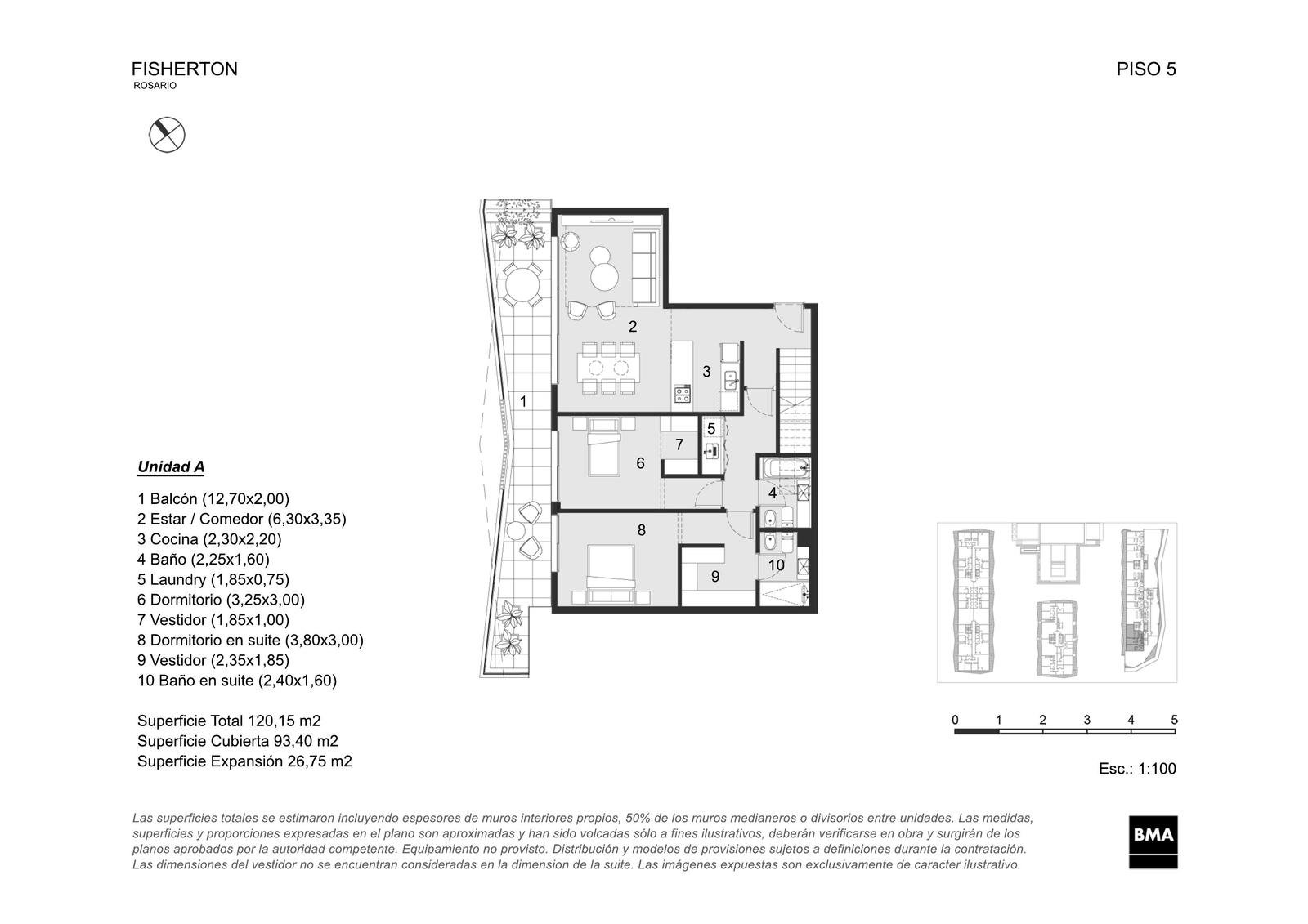
VISO – FISHERTON FUTURO – EVA PERON 8682 – 05-01

Unidad de 2 dormitorios en quinto piso con terraza privada. Dispone de 242 metros de uso exclusivo, a saber, 93 cubiertos exclusivos, y 26,75 de un mega balcón, y una terraza privada de 122 m2. El ambiente social principal, posee generosas dimensiones integrado a la cocina. Laundry sectorizado, dormitorio principal con baño en suite y vestidor, segundo dormitorio asistido por un baño completo. Amplísimo balcón aterrazado, con agradables visuales al entorno verde del condominio. 

La terraza privada de 122 m2, dispondrá de deck y parrilla, acompañado de un hermoso jardín.

Terminaciones:  mobiliario completo de bajo mesadas y alacenas, pileta de acero inoxidable con grifería de primera marca, mesada de silestone o similar, horno y anafe a gas, pisos en porcelanato, baños con loza sanitaria de primeras marcas, griferías, accesorios, espejos colocados y mesada de silestone o similar según unidad y pisos en porcelanatos. Dormitorios con pisos símil madera, placares de piso a techo empotrados con frente e interiores completos en melamina con sistema corredizo. Las unidades contaran con aberturas de aluminio línea A40 o similar con vidrios DVH. Agua caliente mediante caldera dual (incluida) y calefacción por radiadores (no incluye). En departamentos 1 dormitorio, preinstalación de A/A en cada ambiente y en departamentos 2 y 3 dormitorios sistema multisplit.
Amenities: centro fitness, con un generoso espacio para desarrollar la actividad física, SUM con summer grills, idóneo para cocina gourmet, espacio de coworking, zona de juego para niños, áreas verdes y espacio de ocio con fogoneros. Piscina indoor y outdoor.
Forma de pago: entrega del 40 % y el saldo en hasta 36 cuotas en pesos ajustables al c.a.c.
Fecha de entrega: la primer etapa en Noviembre 2026.
Cocheras: Si, opcional



  • Dirección Eva Peron 8600
  • Localidad Rosario
  • Provincia Santa Fe
  • Zona Fisherton
  • País Argentina

Detalles

Subida en abril 16, 2026 at 6:40 pm
  • ID: 5660798
  • Precio: USD407,000
  • Área cubierta: 241.25 M2
  • Dormitorios: 2
  • Ambientes: 4
  • Baños: 2
  • Año de construcción: En construcción
  • Tipo: Departamento
  • Estado: Venta
  • Código de referencia: OBU53439 AP5660798
  • Edad de la propiedad: -1

Más detalles

  • Plantas: 5
  • Superficie cubierta: 93.4 m²
  • Superficie semicubierta: 26.75 m²
  • Orientación: Noreste
  • Condición: Excelente
  • Ocupación: Vacía
  • Superficie descubierta: 121.1 m²

Propiedades similares

Compare listings

Compare
Comercial
  • Comercial
Aguardamos tu consulta