Venta – Condominio Fisherton – 3 dormitorio terraza – Amenities – Financiacion

  • USD373,000
EVA PERON 8682 - 01 - 05 - 3 Dorm
Venta
Venta – Condominio Fisherton – 3 dormitorio terraza – Amenities – Financiacion
EVA PERON 8682 - 01 - 05 - 3 Dorm
  • USD373,000

Resumen

ID: 5660427
  • Departamento
  • Tipo
  • 5
  • Ambientes
  • 3
  • Dormitorios
  • 2
  • Baños
  • 149.66
  • M2
  • En construcción
  • Año de construcción

Descripción

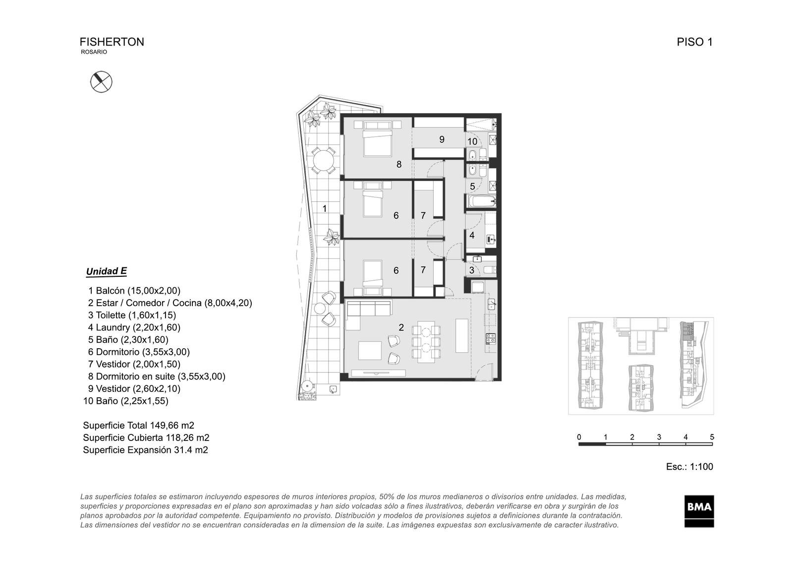
VISO – FISHERTON FUTURO – EVA PERON 8682 – 01-05 

Unidad en primer piso de 3 dormitorios. Dispone de 150 metros de uso exclusivo, a saber, 118m2 cubiertos exclusivos, y 32m2 de terraza. Generoso ambiente social principal semi integrado a la cocina. Toilette de servicio y lavadero sectorizado. Dormitorio en suite con vestidor, un segundo baño completo para los 2 dormitorios restantes. Posee un balcón terraza con vistas al entorno verde del condominio. 

Terminaciones: mobiliario completo de bajo mesadas y alacenas, pileta de acero inoxidable con grifería de primera marca, mesada de silestone o similar, horno y anafe a gas, pisos en porcelanato, baños con loza sanitaria de primeras marcas, griferías, accesorios, espejos colocados y mesada de silestone o similar según unidad y pisos en porcelanatos. Dormitorios con pisos símil madera, placares de piso a techo empotrados con frente e interiores completos en melamina con sistema corredizo. Las unidades contaran con aberturas de aluminio línea A40 o similar con vidrios DVH. Agua caliente mediante caldera dual (incluida) y calefacción por radiadores (no incluye). En departamentos 1 dormitorio, preinstalación de A/A en cada ambiente y en departamentos 2 y 3 dormitorios sistema multisplit.

Amenities: centro fitness, con un generoso espacio para desarrollar la actividad física, SUM con summer grills, idóneo para cocina gourmet, espacio de coworking, zona de juego para niños, áreas verdes y espacio de ocio con fogoneros. Piscina indoor y outdoor.

Forma de pago: entrega del 40 % y el saldo en hasta 36 cuotas en pesos ajustables al c.a.c.


Fecha de entrega: la primer etapa en Noviembre 2026.


Cocheras: Si, opcional

  • Dirección Eva Peron 8600
  • Localidad Rosario
  • Provincia Santa Fe
  • Zona Fisherton
  • País Argentina

Detalles

Subida en abril 16, 2026 at 6:40 pm
  • ID: 5660427
  • Precio: USD373,000
  • Área cubierta: 149.66 M2
  • Dormitorios: 3
  • Ambientes: 5
  • Baños: 2
  • Año de construcción: En construcción
  • Tipo: Departamento
  • Estado: Venta
  • Código de referencia: OBU53439 AP5660427
  • Edad de la propiedad: -1

Más detalles

  • Plantas: 5
  • Medio baño: 1
  • Superficie cubierta: 118.26 m²
  • Superficie semicubierta: 31.4 m²
  • Orientación: Noreste
  • Condición: Excelente

Propiedades similares

Compare listings

Compare
Comercial
  • Comercial
Aguardamos tu consulta