VENTA. CASA DE 2 DORMITORIOS. ECOTIERRA, PUEBLO ESTHER
SOBRE ZONA: Se encuentra ubicado en el barrio abierto EcoTierra, a pocos minutos de Rosario, ingresando a la localidad de Pueblo Esther por la ruta A012
SOBRE DESARROLLO: Un desarrollo pensado y planificado para que vivas cerca de lo que querés, respetando el entramado urbano existente.
Disfrutá de la experiencia de vivir en un lugar tranquilo, y de fácil acceso a los principales puntos urbanos. La localidad donde se encuentra conserva su ventana al río y se caracteriza por tener una ubicación estratégica con numerosos espacios verdes.
Servicios: Avenida comercial pavimentada – Calles internas pavimentadas – Cámaras en puntos estratégicos – Cordón cuneta – Equipamiento y diseño urbano –
Espacios verdes – Forestación planificada – Juegos recreativos – Paseo comercial a cielo abierto – Red de agua potable – Red de desagües cloacales – Red de gas natural – Red eléctrica de media y baja tensión subterránea – Reservorio.
Ecoservicios: Alumbrado público LED subterráneos – Bicicleteros – Bicisenda – Circuito aeróbico – Gimnasio urbano – Luminarias solares en espacios verdes – Plaza para mascotas – Reservorio – Separación de residuos.
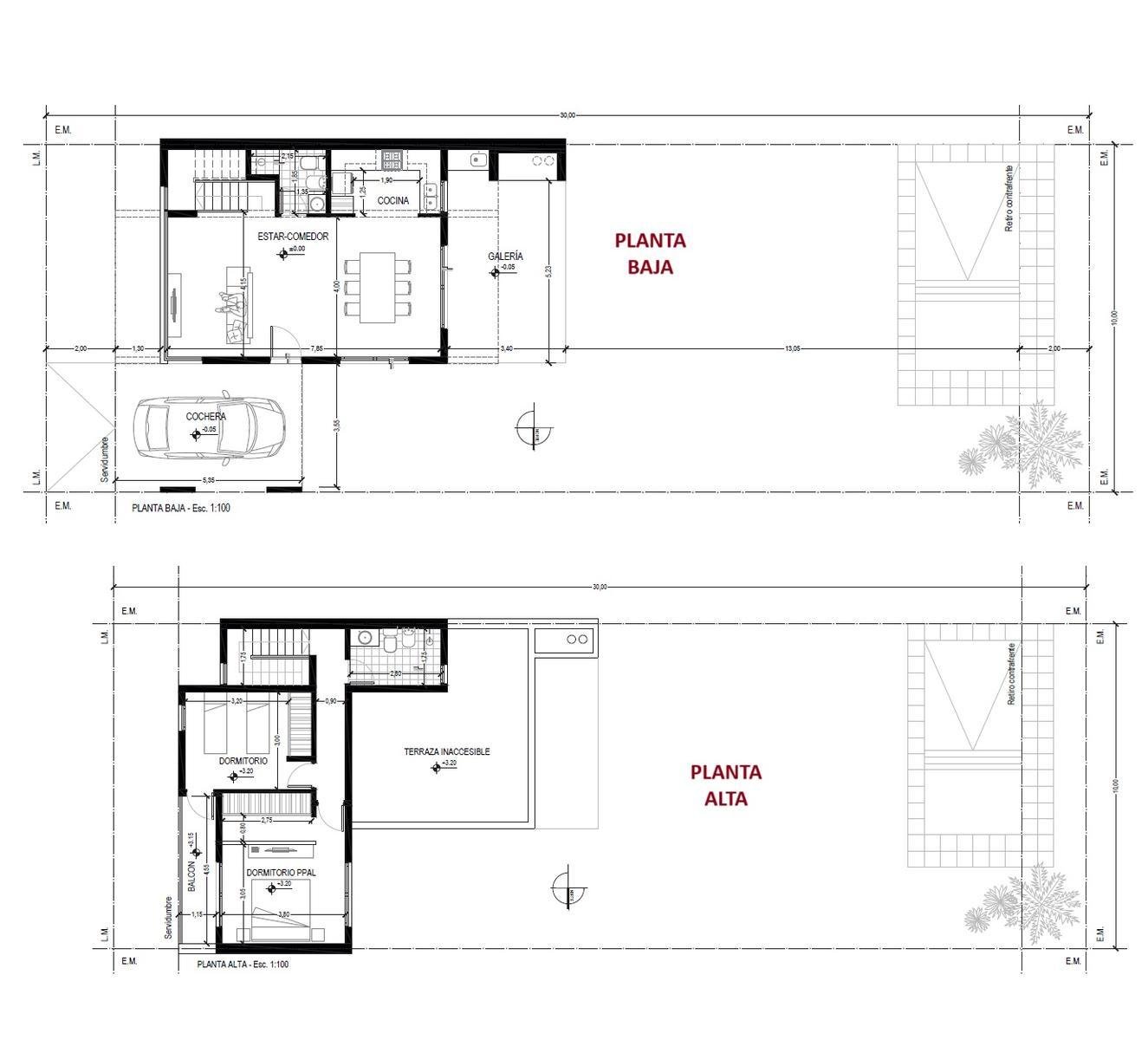
SOBRE INMUEBLE: Casa en construcción desarrollada en PB y PA con disposición al frente sobre un amplio terreno de 300 m2, la misma se distribuye en cocina semi-integrada al living-lomedor y 1 baño completo en Planta baja, más 2 dormitorios y otro baño en Planta Alta; cuenta además con una Galería / Cochera pasante semicubierta en el lateral de la propiedad. Además, se entrega con Pileta terminada y Parrillero.
Valor: USD 154.900.-
Se escuchan propuestas de permuta o financiacion.
Opciones similares en manzana 10 y 12.