Edificio patrimonial en el Centro de Rosario

  • $850,000
Edificio patrimonial en el Centro de Rosario
Venta
Edificio patrimonial en el Centro de Rosario
Edificio patrimonial en el Centro de Rosario
  • $850,000

Resumen

ID: 6715617
  • Local
  • Tipo
  • 5
  • Ambientes
  • 3
  • Baños
  • 900
  • M2
  • 1956
  • Año de construcción

Descripción

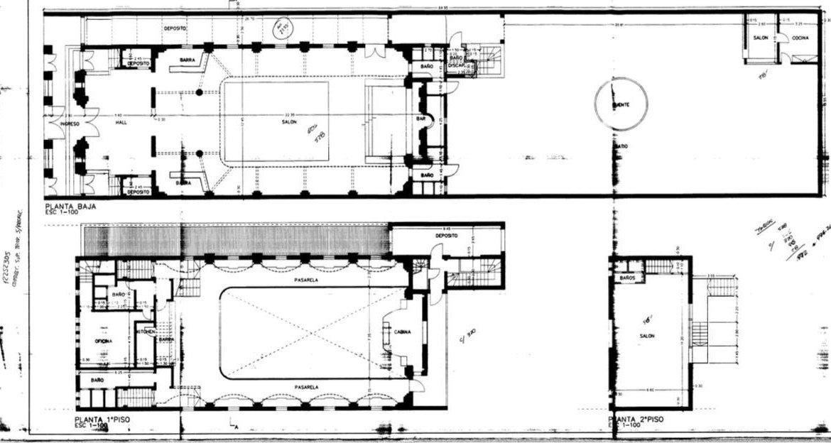
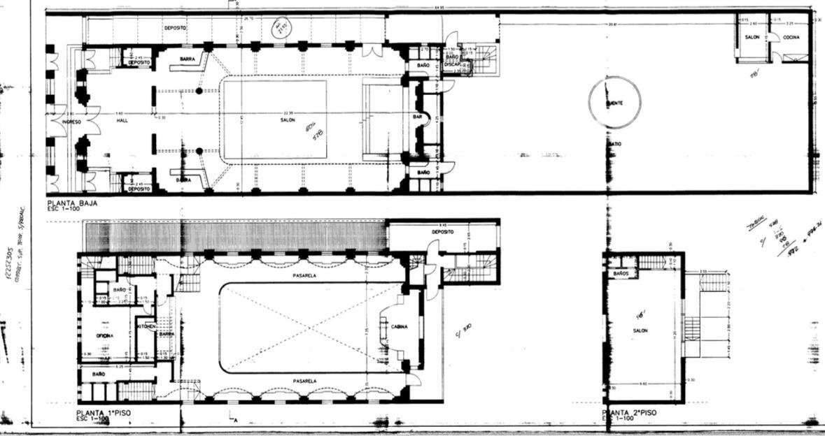
Mitre 1539 – Edificio de Patrimonio Histórico en el Centro de Rosario

Propiedad de estilo Gótico de 450 m2 de construido y 975 m2 de terreno. Su principal atractivo es el diseño de doble altura con grandes ventanales que dan una gran luminosidad al salón principal. También cuenta con un amplio patio con palmeras y árboles.

La desarrolladora LIFE ha elaborado un proyecto de acondicionamiento que maximiza el uso del espacio y la funcionalidad, con una moderna propuesta de diseño que responde a las nuevas necesidades del mercado laboral y empresarial diseñado por BBOA, estudio de arquitectura. La posibilidad es de desarrollar un innovador espacio de co working. El mismo está completamente diseñado y los renders listos, lo que permite al comprador continuar el desarrollo sin perder tiempo en la fase inicial.

Afectación 2 A.

  • Dirección Mitre al 1500
  • Localidad Rosario
  • Provincia Santa Fe
  • Zona Centro
  • País Argentina

Detalles

Subida en febrero 5, 2026 at 5:30 pm
  • ID: 6715617
  • Precio: $850,000
  • Área cubierta: 900 M2
  • Área descubierta: 975
  • Ambientes: 5
  • Baños: 3
  • Año de construcción: 1956
  • Tipo: Local
  • Estado: Venta
  • Código de referencia: OLO6715617
  • Edad de la propiedad: 70

Más detalles

  • Plantas: 2

Propiedades similares

Compare listings

Compare
Nacho
  • Nacho
Aguardamos tu consulta