Resumen

ID: 63038
  • 2027-08-01
  • Año de construcción

Descripción

DESARROLLO DE CATEGORIA EN BARRIO MARTIN DE LA CIUDAD DE ROSARIO

UBICACIÓN
El emprendimiento M. 961 se emplaza en calle Montevideo, entre San Martin y Maipu, en Barrio Martin de la ciudad, brindando multiples oportunidades comerciales, recreativas y gastronomicas ofreciendo así, una conexión ágil y rápida con los demás puntos de Rosario y la región. Por su ubicación se encuentra en proximidad del Parque Urquiza, el Planetario Municipal, la Plaza Lopez, el Instituto Politecnico Superior y facultades como la Facultad de Ingenieria, la UCEL y la Universidad Tecnológica Nacional (UTN).

CARACTERÍSTICAS
El desarrollo constará de un total de 8 pisos y terraza, los cuales albergarán unidades que van desde 1 hasta 3 dormitorios, adaptandose de esa forma, a cada una de las necesidades de cada residente. El edifcio se destacará por su arquitectura innovadora y su diseño vanguardista. logrando que los amplios y elegantes espacios residenciales ofrezcan modidad, privacidad y una estética moderna. El diseño inteligente maximiza la eficiencia del espacio, proporcionando áreas amplias y funcionales que se adaptan a los diferentes estilos de vida de cada uno de los habitantes. A su vez, la tecnología incorporada al desarrollo brindará comodidad y una excelente conectividad en cada rincón del edificio.

En su espacioso exterior, se destaca un quincho abierto con unsector de parrillero, ideal para organizar reuniones. El edificiocuenta con un sector de piscina y solarium. Y para aquellos que buscan una experiencia única, sector Green Rooftop & Skybar, un espacio en la azotea con un entorno verde y un bar exclusivo que ofrece vistas panorámicas de la ciudad, creando un ambiente para socializar y disfrutar de la vida al máximo. Estas instalaciones hacen de este edificio un lugar perfecto para vivir, ofreciendo espacios de esparcimiento y recreación que invitan al bienestar y al disfrute.

Las unidades se diseñaran con detalles minimalistas quecrean una sensación de serenidad y sofisticación. Amplias ventanas que permiten la entrada de abundante luz natural, realzando la belleza de los acabados. Ya sea una acogedora sala de estar, una cocina equipada con electrodomésticos de última generación o dormitorios tranquilos, estos departamentos ofrecen un estilo de vida moderno y cómodo que se adapta a las necesidades de sus residentes.

El emprendimiento se distribuirá de la siguiente manera:

SUBSUELO
– Gimnasio totalmente equipado: bicicleta fija, cinta de caminar, banca para press con mancuernas
– Sector kids con equipamiento “Crucijuegos”
– Espacio de Cowork/Encuentro totalmente equipado

PLANTA BAJA
– Local comercial a la calle
– Acceso a cocheras con portón mecánico
– Hall de ingreso con diseño vanguardista y moderno

8 PLANTAS DESTINADAS A VIVIENDAS HABITACIONALES, con un total de 25 unidades que se distribuyen de la siguiente manera:
• 2 unidades de 1 dormitorio
• 17 unidades de 2 dormitorios
• 5 unidades de 3 dormitorios
• 1 duplex de 3 dormitorios

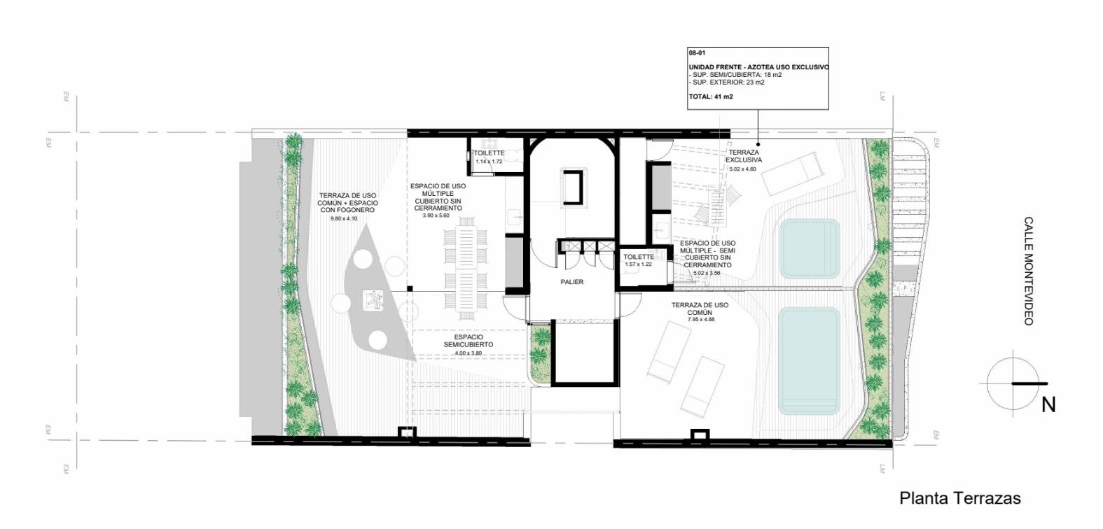
TERRAZA
– Area de relax equipada con fogonero y mobiliario confortable
– Quincho abierto con un sector con parrillero
– Sector de pileta con deck
– Area de Solarium
– Sector GreenRooftop y SkyBar, con un entorno verde y un bar exclusivo ofreciendo vistas panorámicas de la ciudad

DETALLES CONSTRUCTIVOS

-Ingreso Principal y Espacios Comunes

CONTROLES DE ACCESO Y SEGURIDAD CON TECNOLOGÍA DE PUNTA:
• Portería mediante reconocimento facial, táctil o tarjeta de seguridad.
• Sensores de humo en espacios comunes y en todas las unidades internas.
• Video portería con pantalla táctil inteligente con alarma incluída y posibilidad de monitoreo (contratable).
• Pantalla táctil en unidades y espacios comunes para visualización de cámaras de todo el edificio.
• Cámaras de video de alta definición para vigilancia en diferentes puntos del edificio (palieres, ascensores, espacios comunes).
• Servicio de botón de pánico (contratable).
• Wifi gratuito en espacios comunes.
• Edificio diseñado en seguridad para recibir monitoreo en tiempo real mediante VIDEO WALL y posibilidad de servicio ACUDA con móvil privado ante un siniestro (contratable).

MUROS Y TERMINACIONES
• Doble muro compuesto aislado para máxima calidad térmica.
• Terminación con yeso en paredes y cielorraso

ABERTURAS
•Cerramiento de aluminio o similar de alta prestación con vidrios DVH (doble vidriado hermético)

PUERTAS
•Puerta de seguridad de ingreso a departamentos con tecnología de avanzada y cerradura Smart bluetooth.
•Puertas interiores de alta prestación con marcos y hoja de WPC, con herrajes de tecnología, hermeticidad y alto peso específico

MOBILIARIO DE COCINA
•Alacenas y bajo mesadas de diseño: MDF 18mm laminados con filos de PVC, zócalos de acero inoxidable o similar.
•Iluminación en mobiliario.
•Mesadas de diseño .
•Bacha de acero inoxidable con griferías.
•Horno embutido y anafe separados sobre mesada.
•Espacio provisto para purificadores de aire.
•Mobiliario para lavarropas y termotanques.

EQUIPAMIENTO DE BAÑO
•Sanitarios y griferías de primera marca.
•Bañera sin mampara o receptáculo de ducha.
•Vanitory de diseño o mesada de mármol con bacha de apoyo.
•Accesorios de baños y espejo retroiluminado.
•Diseños en cielorraso con iluminación difusa.

BALCONES
•Canteros integrados a la estructura del edificio, provistos de vegetación y automatizados con riego por goteo.
•Estructuras metálicas con vegetación.
•Iluminación en cielorraso.
•Provisión de canilla de servicio de agua.
•Provisión de toma de electricidad.
•Parrillero a carbón en balcones de unidades: PISO 6º A 8º: UNIDAD 01 y 02

FINANCIACIÓN: Plan 30/70. Fiananciación en 36 cuotas en dolares o pesos segun CAC

ENTREGA ESTIMADA: AGOSTO 2027

Estado de la construcción: En obra

Dirección

  • Address Montevideo 961
  • Zip/Postal Code
  • Country Argentina
  • State Rosario
  • City Rosario
  • Area Martin

Detalles

  • Property ID 63038
  • Year Built 2027-08-01
  • Property Status Emprendimiento

Unidades disponibles

Comercial
  • Comercial

Consultá por esta propiedad

Compare listings

Compare
Comercial
  • Comercial
Aguardamos tu consulta